Plaza Distrito 8

Un nodo comercial abierto diseñado para activar la vida urbana y maximizar el flujo

Tipo de desarrollo
Plaza Comercial
Estilo arquitectónico
Contemporáneo
Ubiacación
Tepalcatepec, Michoacán
Año
En el diseño comercial, el éxito se mide en flujo peatonal. Plaza Ocampo rompe con el esquema de la plaza cerrada para ofrecer un espacio abierto y permeable que invita a la ciudad a entrar. Ubicada en Tepalcatepec, esta obra utiliza la arquitectura como herramienta de negocio, creando recorridos intuitivos y espacios de permanencia sombreados que prolongan la estancia del usuario y potencian la exposición de las marcas.

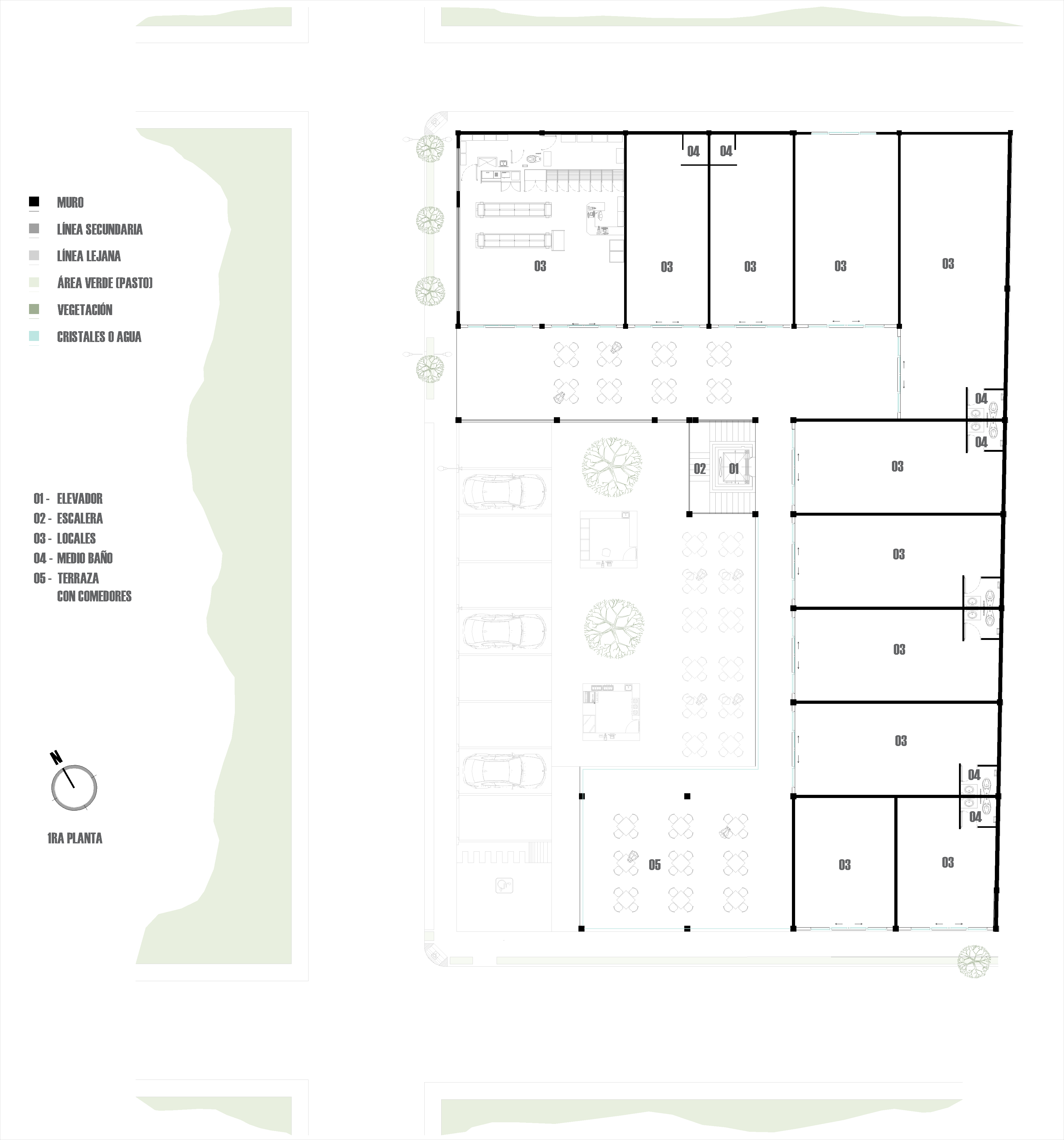
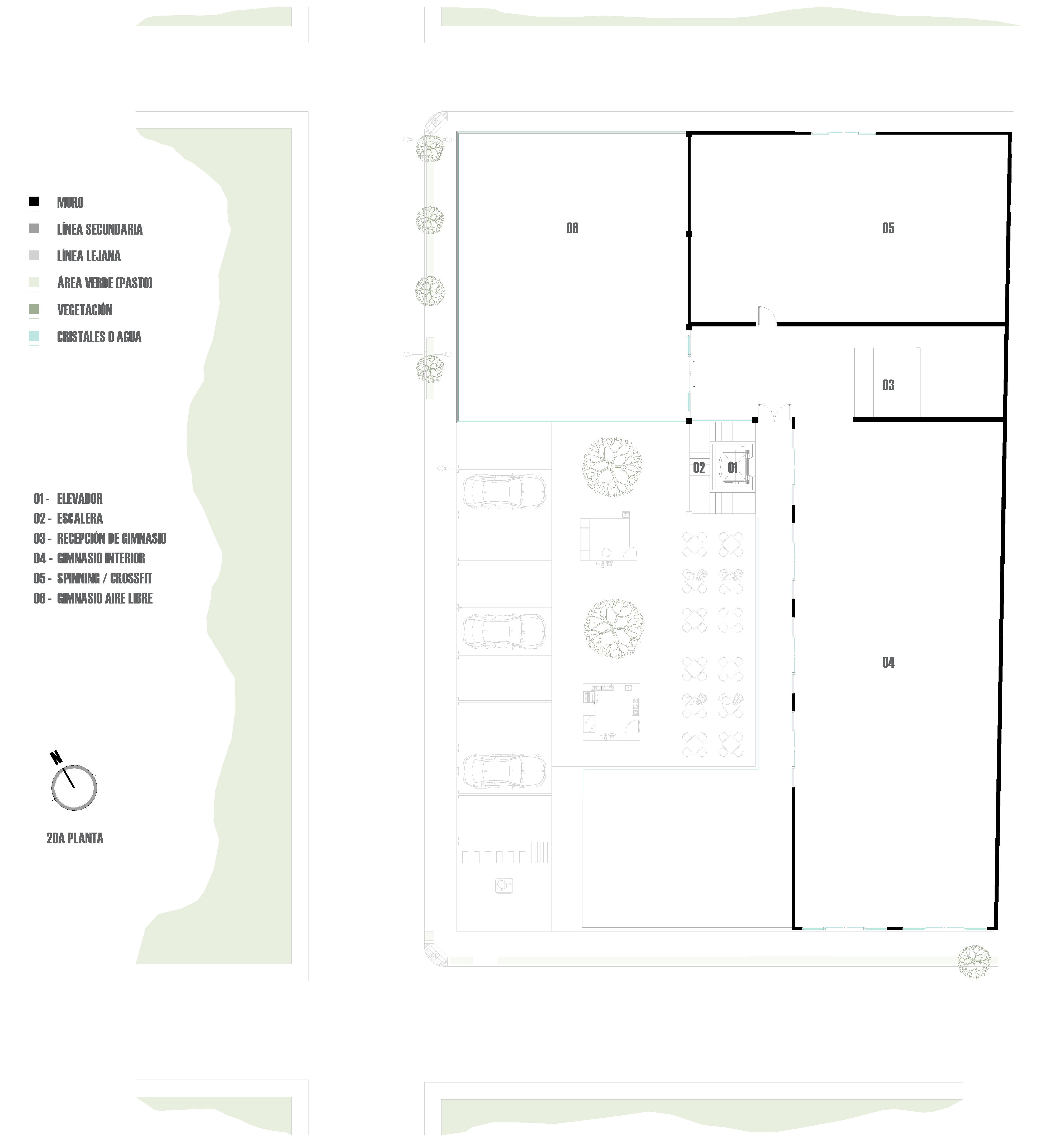
Planta libre para el comercio, terrazas para la vida social.

El análisis del sitio nos dictó una solución en dos niveles claramente diferenciados pero conectados. La planta baja se diseñó como una extensión de la calle: una plataforma libre y permeable que maximiza los metros lineales de escaparate, garantizando que cada local tenga visibilidad frontal inmediata.

En el nivel superior, cambiamos la dinámica. Aprovechamos la losa para crear amplias terrazas abiertas y zonas de estancia (como el gimnasio), transformando la azotea en un mirador urbano. Esta distribución vertical no solo duplica el área rentable, sino que activa la plaza en diferentes horarios: comercio rápido abajo durante el día, y vida social y deportiva arriba por la tarde/noche.

El reto climático de la región exigía protección. Implementamos un sistema de pérgolas de madera y grandes voladizos de concreto aparente que arrojan sombra sobre los pasillos de circulación.

Esta estrategia bioclimática reduce la temperatura ambiente y elimina el "efecto isla de calor", haciendo agradable el recorrido incluso en las horas más soleadas. La materialidad —piedra, concreto y acero— fue elegida por su bajo mantenimiento y alta resistencia al tráfico pesado, asegurando que la plaza envejezca con dignidad sin generar costos operativos excesivos.

No items found.
Pensamientos finales
"Plaza Ocampo demuestra que una plaza comercial no tiene que ser una caja cerrada. Al abrir la arquitectura a la calle, convertimos un simple edificio en un punto de encuentro comunitario rentable."
Nuestros proyectos
Auditorio Dr. Neye Arizmendi
Arrow pointing right icon
Diseño arquitectónico
Dirección de Obra
Goldenwave: Plaza Comercial & Departamentos
Arrow pointing right icon
Diseño arquitectónico
Visualización 3D
Pacific Bay Villas
Arrow pointing right icon
Diseño arquitectónico
Visualización 3D
Interiorismo Integral
Casa Acerina
Arrow pointing right icon
Consultoría Técnica
Visualización 3D
Casa Cardonal
Arrow pointing right icon
Diseño arquitectónico
Dirección de Obra
Trámites y permisos
Casa Celio
Arrow pointing right icon
Diseño arquitectónico
Visualización 3D
Casa Cenia
Arrow pointing right icon
Diseño arquitectónico
Visualización 3D
Dirección de Obra
Casa Galarza
Arrow pointing right icon
Diseño arquitectónico
Interiorismo Integral
Departamentos Luhr
Arrow pointing right icon
Diseño arquitectónico
Interiorismo Integral
Casa Ruiseñor
Arrow pointing right icon
Diseño arquitectónico
Interiorismo Integral
Casa Punta norte
Arrow pointing right icon
Diseño arquitectónico
Dirección de Obra
Casa Ovni
Arrow pointing right icon
Diseño arquitectónico
Visualización 3D
Casa Nogueras
Arrow pointing right icon
Diseño arquitectónico
Dirección de Obra
Casa Visión
Arrow pointing right icon
Diseño arquitectónico
Visualización 3D
Interiorismo Integral
Casa Dolom
Arrow pointing right icon
Diseño arquitectónico
Interiorismo Integral
Visualización 3D
La confianza se construye con hechos
Más allá de los planos y el concreto, nuestro mayor activo es la tranquilidad de nuestros clientes. Así viven ellos la experiencia de construir con Roka
Star iconStar iconStar iconStar iconStar icon
"Entendieron perfecto el negocio. Los locales se rentaron antes de terminar la obra gracias a la gran propuesta de diseño diseño."
Sofía Linares
Manzanillo, Colima
Star iconStar iconStar iconStar iconStar icon
"Vivo fuera de México y jamás me preocupé por nada. Sus reportes semanales me daban paz y la entrega fue exacta. 100% profesionales."
James Escobar
La Paz, Baja California Sur
Star iconStar iconStar iconStar iconStar icon
"Nuestras nuevas bodegas opera perfecto. Su asesoría técnica inicial nos ahorró mucho dinero en mantenimiento futuro. Excelentes."
Ing. David Villa
Colima, Colima
Star iconStar iconStar iconStar iconStar icon
"Lo que más valoro es cómo resuelven. En la obra siempre surgen temas, pero Roka siempre llegaba con la solución lista."
Lic. Fernando Pinto
Los Cabos, Baja California Sur
Star iconStar iconStar iconStar iconStar icon
“Their strategic insights helped us navigate the intersection of artificial intelligence and healthcare.”
Daniel Garcia
Product Director, Chausseur
Star iconStar iconStar iconStar iconStar icon
“Their systematic thinking uncovered opportunities we hadn't considered possible.”
James Mitchell
Brand Director, Dunham & Co
Star iconStar iconStar iconStar iconStar icon
“Brought unprecedented clarity to our sustainable investment framework and client communications.”
Hannah Weber
Digital Director, Hermosa
Star iconStar iconStar iconStar iconStar icon
“Andersen captured our spirit while maintaining scientific credibility and the technical excellence we demand.”
Laura Thompson
CTO, Parallax AI